Ramfjord

2024
Metrostav DIZ a.s
NOR-Ramfjordbrua
Projekt nadvýšení, Výrobní dokumentace

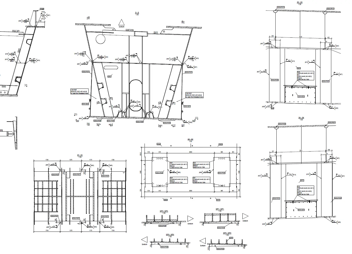
Sedmipolový ocelobetonový komorový most o celkové délce 885,6 m a odhadované hmotnosti ocelové komory 5500 tun. Mostní pole 1 (90 m), 2 (135 m), 3 (135 m) a 7 (100 m) se stala výzvou pro druhou polovinu roku 2024. Naše výrobní dokumentace putovala do mostárny v Praze a v Prostějově, což si vyžádalo koordinaci zvyklostí a výrobní možnosti jednotlivých dílen a zohlednění jejich požadavků v naší dokumentaci.

Prohlédněte si naše ostatní reference

VÝHODY

Již více než 20 let inovujeme průmysl komplexními řešeními s lidským přístupem.

daniel nedbal

jednatel společnosti

Od roku 2001 přinášíme kvalitu, na kterou se můžete spolehnout.

Realizujeme komplexní projekty od návrhu až po výrobu na klíč.

Jsme experti na inovace, které posouvají vaše podnikání vpřed.

Cookies

Používáme technické cookies, které jsou nezbytné pro správnou funkčnost a zabezpečení našeho webu. Tyto cookies nám pomáhají zajistit plynulý běh a uživatelský komfort při vaší návštěvě. Pokračováním v prohlížení webu souhlasíte s jejich použitím. Další informace o cookies a jak je používáme najdete v našich Prohlášení o používání cookies.