Waregem

2017
TGW Logistics GmbH -> TVH
BE-Waregem
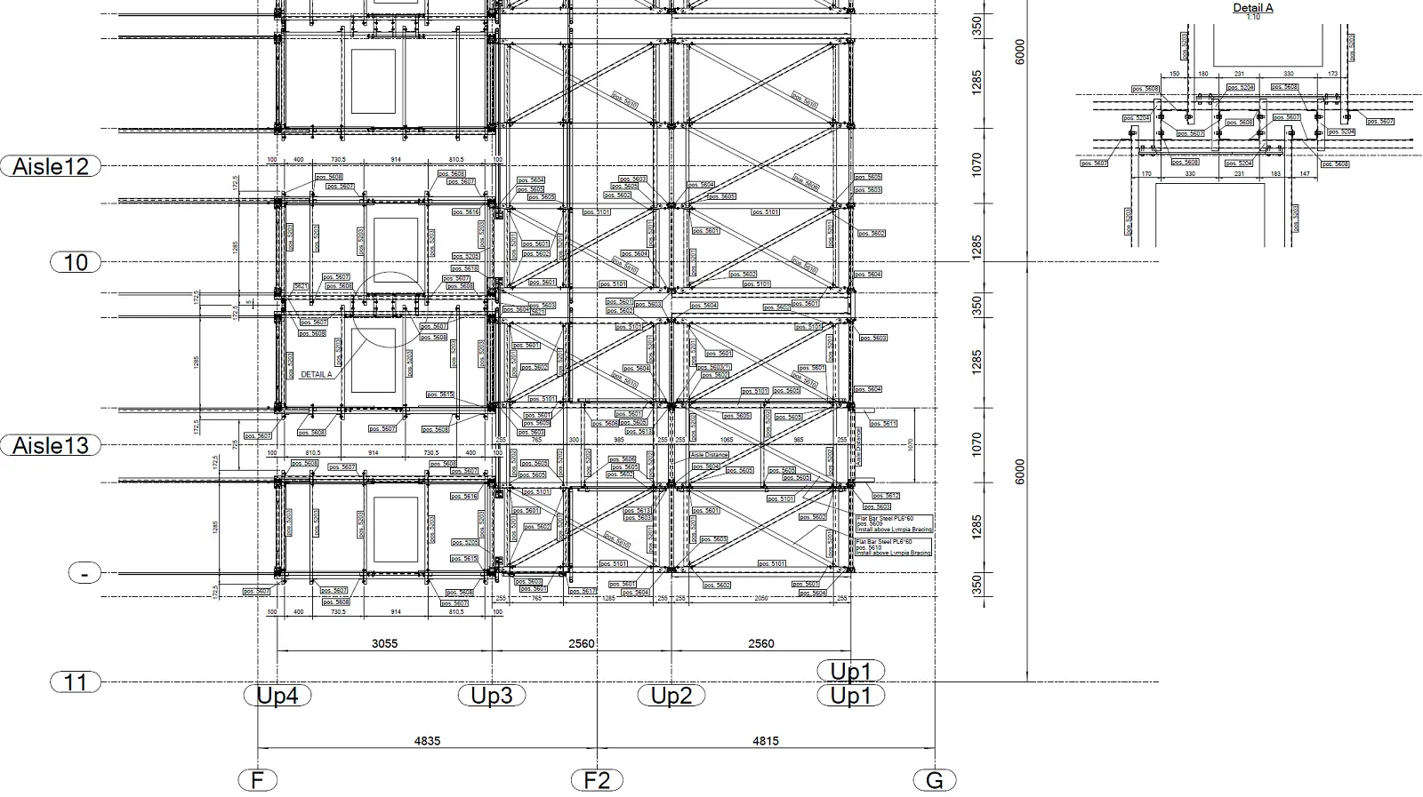
3D model a Výrobní dokumentace a montážní dokumentace

Automatizovaný regál z tenkostěnných profilů, pro uskladnění náhradních dílů, o celkových půdorysných rozměrech 52,3 x 51,6 m a výšce 24,8 m.

Prohlédněte si naše ostatní reference

VÝHODY

Již více než 20 let inovujeme průmysl komplexními řešeními s lidským přístupem.

daniel nedbal

jednatel společnosti

Od roku 2001 přinášíme kvalitu, na kterou se můžete spolehnout.

Realizujeme komplexní projekty od návrhu až po výrobu na klíč.

Jsme experti na inovace, které posouvají vaše podnikání vpřed.

Cookies

Používáme technické cookies, které jsou nezbytné pro správnou funkčnost a zabezpečení našeho webu. Tyto cookies nám pomáhají zajistit plynulý běh a uživatelský komfort při vaší návštěvě. Pokračováním v prohlížení webu souhlasíte s jejich použitím. Další informace o cookies a jak je používáme najdete v našich Prohlášení o používání cookies.