ČSPH Alžbětín

2021
Habe, s.r.o.
CZ-Železná Ruda – Alžbětín
Prováděcí projekt

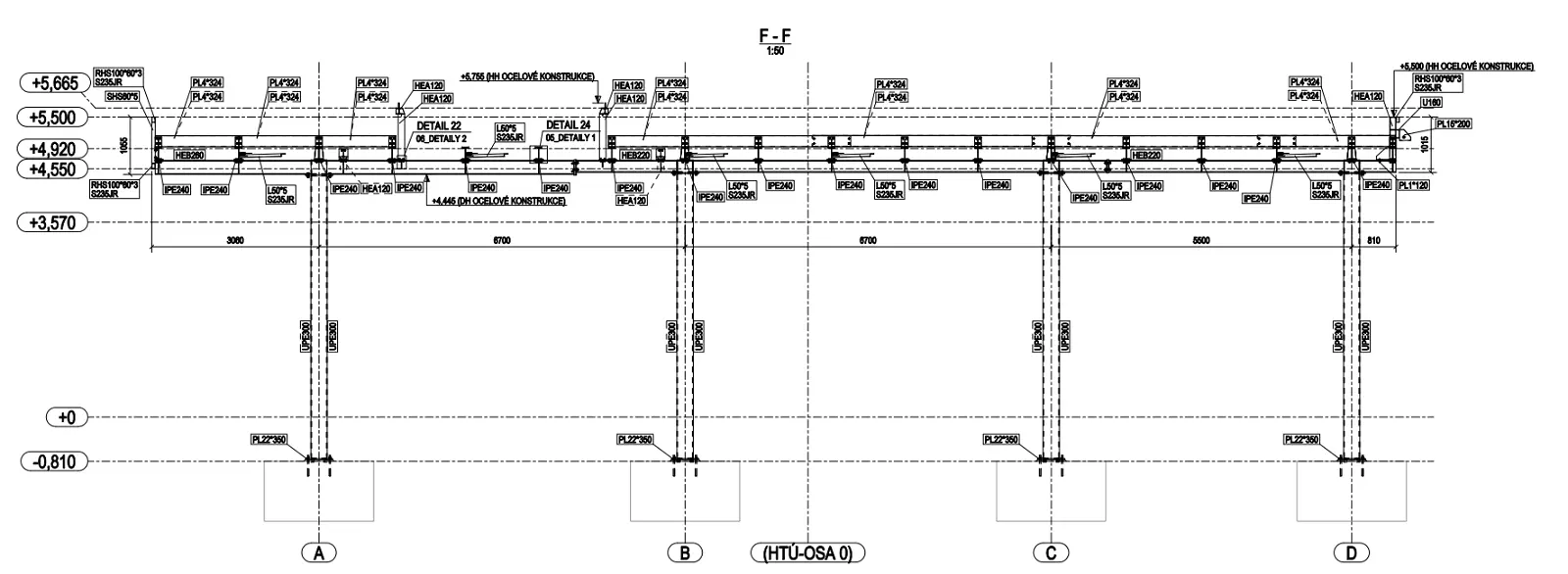
Čerpací stanice pohonných hmot v šumavském Alžbětíně má ocelovou nosnou konstrukci kombinovanou s dřevěným krovem. Obě části jsme na základě stavebně-architektonického návrhu staticky posoudily včetně všech potřebných přípojů a kotvení. Celkové půdorysné rozměry konstrukce jsou cca 23×19 m.

Prohlédněte si naše ostatní reference

VÝHODY

Již více než 20 let inovujeme průmysl komplexními řešeními s lidským přístupem.

daniel nedbal

jednatel společnosti

Od roku 2001 přinášíme kvalitu, na kterou se můžete spolehnout.

Realizujeme komplexní projekty od návrhu až po výrobu na klíč.

Jsme experti na inovace, které posouvají vaše podnikání vpřed.

Cookies

Používáme technické cookies, které jsou nezbytné pro správnou funkčnost a zabezpečení našeho webu. Tyto cookies nám pomáhají zajistit plynulý běh a uživatelský komfort při vaší návštěvě. Pokračováním v prohlížení webu souhlasíte s jejich použitím. Další informace o cookies a jak je používáme najdete v našich Prohlášení o používání cookies.